Descripción
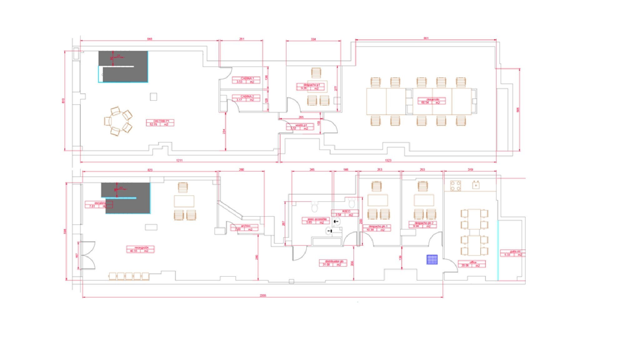
¡Descubre la oficina de tus sueños en la prestigiosa Avenida del Cid! Esta espectacular oficina de 300 m² construidos y 285 m² útiles, distribuida en dos plantas, ha sido completamente reformada para ofrecerte el entorno ideal para tu actividad. En la planta baja encontrarás múltiples despachos y dependencias, una elegante sala de reuniones, un práctico office y aseos. La planta alta te sorprenderá con un amplio espacio diáfano tipo open-work, perfecto para fomentar la colaboración y creatividad de tu equipo.
Ubicada a tan solo 200 metros del metro de Avenida del Cid, esta oficina se sitúa en una zona residencial consolidada con una amplia variedad de comercios cercanos, lo que facilita el día a día de tus empleados y clientes. El suelo de parquet añade un toque de calidez y elegancia a cada rincón del inmueble, creando un ambiente acogedor y profesional.
Esta oficina estará disponible YA para su alquiler o venta , pero no esperes más para conocerla. ¡Agenda tu visita hoy mismo y descubre por qué esta es la ubicación perfecta para llevar tu negocio al siguiente nivel!
